Сергія Колачевського — Здається торгівельний майданчик
(г. Кривой Рог, Терновской район)
350 грн. за кв.м.
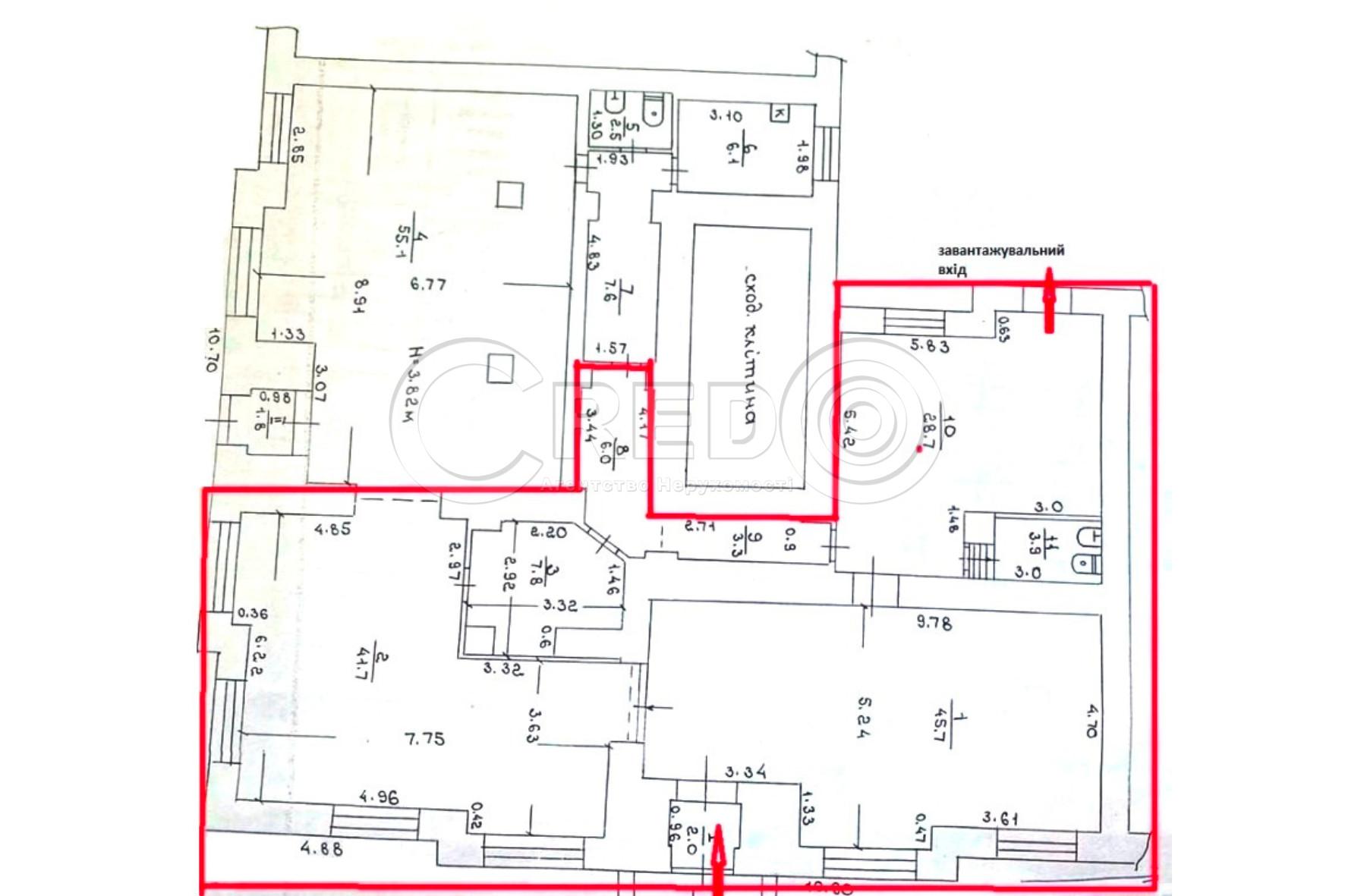
Загальна площа: 140 кв.м
Поверх: 1
К-ть поверхів: 4
Оренда торгового приміщення - Тернівський р-н - вул. С. Колачевського Технічні характеристики: - вбудоване в перший поверх 4-х поверхового будинку - окремий вхід - " червона лінія" - зручний підїзд для авто Планування об’єкту: - загальна площа - 140 кв.м - торгівельна площа - 90 кв.м - подсобні приміщення - центральний та завантажувальний вхід Комунікації: - опалення автономне газове - центральне електропостачання 20кВт; 380 Вт - кондиціювання - центральне водопостачання - центральна каналізація - пожежна, охоронна сігналізації Логістична розв’язка: - приміщення розташоване по "червоній лінії" - поруч зупинки громадського транспорту - залізничний вокзал "Рокувата" - житловий масив - великий автомобільний та пішохідний трафік Додаткові платежі: - електроенергія, вода - лічильники - вивіз сміття - послуги ЖКХ - інтернет, охоронна сигналізація - послуга агенції - 50 % Оренда - 350 грн/кв.м За будь-якими питаннями за цією або іншими пропозиціями звертайтесь за номером телефону 067 696 16 51. З повагою, команда Credo!
Оновлено: 18 липня 2025
Розміщено: 14 травня 2025
Вам также могут подойти
Оновлено: 15 січня
Розміщено: 16 липня 2025
площа 130, поверх 1/5
г. Кривой Рог, ул. Тимирязева
500 грн. за кв.м.
Літвинова Ірина Вікторівна
Оренда приміщеннь на "Роковатій" - Тернівський район - вул. Тімірязєва Технічні характеристики: - перший поверх 5-х поверхового житлового будинку - проїздна частина Планування об’єкту: - загальна площа -130 кв.м -…
Детальніше
Оновлено: 17 грудня 2025
Розміщено: 16 серпня 2023
площа 227, поверх 2/2
г. Кривой Рог, Соборності
180 грн. за кв.м.
Літвинова Ірина Вікторівна
Оренда приміщення на "Соцмісті" - вул. Соборності - Металлургійний район - "червона лінія" Технічні характеристики: - другий поверх окремої 2-х поверхової будівлі - загальна площа - 227 кв.м, - торгівельна…
Детальніше
Оновлено: 20 січня
Розміщено: 12 лютого 2024
площа 254
г. Кривой Рог, ул. Независимости Украины
200 грн. за кв.м.
Літвинова Ірина Вікторівна
Пропонуємо в оренду приміщення в Торговому Комплексі, що розташований по вул. Незалежності України Про об'єкт: - загальна площа - 254кв.м. - вільного планування, в хорошому стані, Комунікації: - електроенергія -…
Детальніше
Коментарі