Продаж 1/2 будинку котеджного типу. Довгинцівський район. Пропонуємо до продажу охайне домоволодіння по вулиці Янки Купали у Довгинцівському районі. Міцний цегляний будинок. Акуратна земельна ділянка. Гарні сусіди - великий плюс!
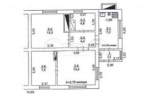
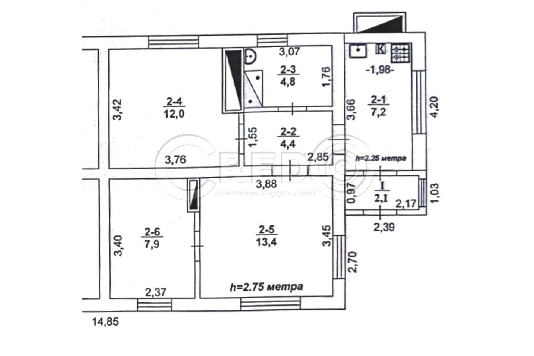
Про об'єкт: - 3кімнатна квартира у котеджі. - загальна площа 51,8 м.кв. - житлова 33,3 м.кв. - комплекс господарских споруд. - літня кухня з дров'яною плитою. - баня та туалет на території. - земельна ділянка 7 сот. з молодим садом сортових дерев та виноградником.
Планування об'єкту: - 3 кімнати: 13,4 + 12 + 7,9 м.кв. - високі стелі 2,75 м. - кухня (прохідна) 7,2 м.кв. - приміщення під ванну кімнату 4,8 м.кв.
Комунікації: - центральний водогін. - каналізація - септик. - опалення будинку комбінований газовий котел з функцією твердопаливного. - на все встановлено лічильники. - санвузол поки не в будинку, але є можливість швидко обладнати в приміщенні.
Локація: - жвава вулиця Янки Купали має нову назву в.Євгенія Саєнка. - вихід до зупинок громадського транспорту на вулицях Промислова та Апостолівська. - маршрутні таксі № 264,265,269. - локаційно поряд Криворізька загальноосвітня школа № 94. дошкільний навчальний заклад № 111, відділення НП №10.
Ціна на сьогодні 12 000 $ За будь-якими питаннями за цією або схожими пропозиціями звертайтесь за номером телефону, де вам відповість наш ріелтор 067 982 17 19.