ул. 22-го Партсъезда — Продається торгівельний майданчик
(г. Кривой Рог, Дзержинский район)
330000 $
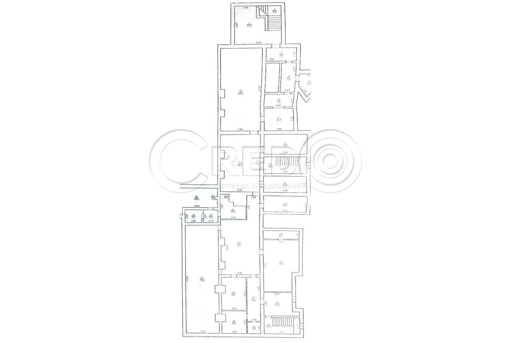
Загальна площа: 986 кв.м
Поверх: 1
К-ть поверхів: 9
Продаж нежитлового приміщення вул. В.Матусевича Приміщення кутове, має два входи, великі вітражні вікна. Добре проглядається з дороги, великий пішохідний та автомобільний трафік.
Особливості об’єкту: - Розташоване на 1-му поверху - Загальна плща 986.9кв.м. - Перший поверх 482кв.м. - Підвал 504.9кв.м - Висота стелі Н - 3м. - Два входи - Вітражні вікна - Парковка біля приміщення
Технічні характеристики: - Стіни гіпсокартон під фарбування - На підлозі кахель - Замінена проводка - Примусова вентиляція - Сан.вузол
Комунікації: - Водопостачання - Центральна каналізація - Електроенергія: 380V, 150кВт.
Логістична локація: Поряд Міська Рада, КНУ, Цирк, ресторан, ринок, розважальний центр, магазини.
Продаж – 330 000 $ За будь-якими питаннями за цією або схожими пропозиціями звертайтесь за номером телефону 098 985 09 08. З повагою, команда Credo!