Продам дом Вашей мечты. Элитный 2х этажный дом в северной части г. Мелитополя. Особый проект. Дизайнерский ремонт из экологически чистых материалов. Расположен на прямоугольном приватизированном участке в 15 сот. Есть зеленые декоративные насаждения.
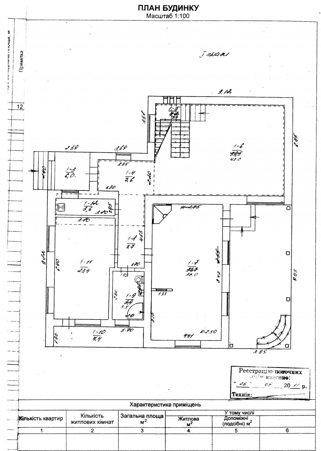
Дом общей площадью 299 кв м. 1й этаж площадью 127 кв. м: - холл 43 кв. м; - кабинет 23 кв. м с балконом; - кухня – столовая 36 кв м с камином и террасой 35 кв. м; - котельная 4 кв. м; - сан узел 6 кв. м
2й этаж площадью 100 кв. м: - спальня 38 кв. м; - спальня с балконом 27 кв. м; - бытовая комната 5 кв. м; - сан. узел 7 кв. м
Подвальное помещение площадью 62 кв. м Все коммуникации. Газовый котел. Стоимость дома 105 000 $