Вхід на сайт

Ел. пошта:
Пароль:

Реєстрація на сайті

Призвіще: Область:
Ім'я: Населений пункт:
    По батькові: Номер телефону:
    Ел. пошта: Компанія:
      Пароль: Посада:
      Повторіть пароль: Рік початку роботи:
      Фото:
      З правилами розміщення об'єктів погоджуюсь

      Забули пароль?

      Вкажіть ел. пошту — ми надішлемо Вам новий пароль для входу
      Ел. пошта:

      Проблема на сайті

      Закрити
      Ваш e-mail:
      (необов'язково)
      Розкажіть нам, що сталось

      без комісії Проспект Героев Украины — Продається коммерційна ділянка

      (г. Николаев, Центральный район)

      1500000 $

      Площа ділянки: 4.3874 га (438.74 сот)

      Продается земельный участок и здания расположеные в центре города Николаев, на берегу реки, в начале проспекта Героев Украины.
      
Земельный участок площадью 4.3874 га,
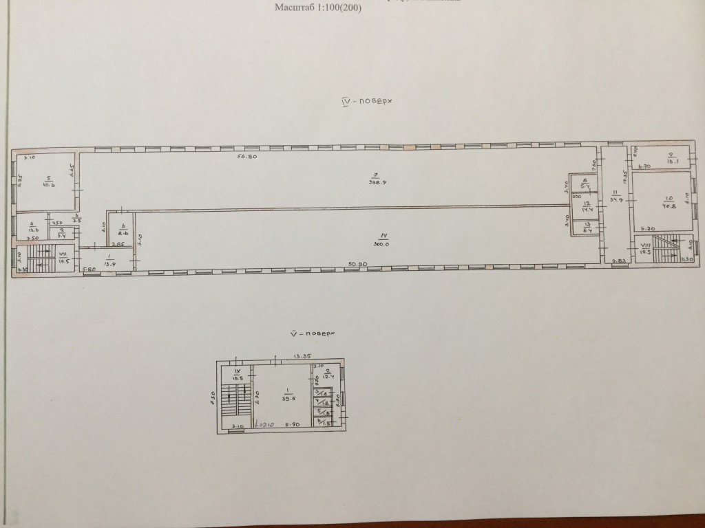
      а также недвижимость и инфраструктурные объекты общая площадь 17461 м2
      цех площадью 7801.0 м2;
      цех площадью 1977.8 м2;
      цех площадью 7079.8 м2;
      бойлерная 131.7 м2;
      склад 191.9 м2;
      трансформаторная 43.8 м2;
      столовая 220.9 м2;
      проходная 14.1 м2; рядом набережная, автодороги.

      Участок оборудован автомобильными и железнодорожными путями. Важно, что здания продаются вместе с землей. Объект имеет огромные перспективы как в плане офисной застройки, или как производственная или складская площадка.
      Есть договор с ПАО «Николаевоблэнерго» ( собственная ТП, в наличии два трансформатора на 400 кВа, один из которых резервный, напряжением 6000V/0,4 V. Разрешённая мощность до 360 кВт).
      Есть договор с КП «Николаевводоканал» на подачу питьевой воды и приём сточных вод.
      К земельному участку подведена труба газовой магистрали.
      Есть собственная материально-техническая проходная, обеспечивающая проезд легкового и грузового автотранспорта.
      Есть выход к причальной стенке, с возможностью пользования на платной основе, глубина акватории 8-12 м.
      Ограничения относительно застройки и использовьания земельного участка отсутствуют.

      Єрмолов Олег

      Єрмолов Олег В'ячеславович

      Директор, засновник (Юрінформ АН)

      +380 (63) 774-57... Показати номер телефона +380 (63) 774-57-09, +380 (50) 753-25-48, +380 (67) 115-46-35

      Поскаржитися на об'єкт

      Надіслати скаргу

      Закрити
      Поскаржитися на об'єкт «Проспект Героев Украины (г. Николаев, Центральный район)»
      Ваш коментар:(Необов'язково)
      Ваша скарга буде надіслана ріелтору, що розмістив об'єкт, а також адміністрації сайту АФНУ.
      Ваше ім'я:
      (Обов'язково)
      Ваш e-mail для відповіді:
      (Обов'язково)

      Коментарі

      • Олєйников Андрій

        Олєйников Андрій

        2 травня 2018 в 16:26

        Какие документы на земельный участок и целевое назначение?

        #
        Єрмолов Олег

        Єрмолов Олег В'ячеславович

        3 травня 2018 в 15:31

        Акт приймання-передачи нерухомого майна. Є Державна реєстрація. Для обслуговування виробничих будівель и споруд.

        #
        Єрмолов Олег

        Єрмолов Олег В'ячеславович

        4 травня 2018 в 11:44

        Передавались по уставному капиталу от юрлица юрлицу! До этого было Решение Хозяйственного Суда!

        #