- Лічильники на газ, холодну воду та електроенергію,
- Встановлення радіаторів з регуляторами,
- Підготовка підлоги, штукатурка стін (крім приміщень санвузла, ванни та робочої стіни кухні).
ЗРУЧНЕ РОЗТАШУВАННЯ КОМПЛЕКСУ:
- Супермаркети "Еко-маркет", "АТБ" (4 хвилини пішки), - Парк Березовий Гай (5 хвилин пішки), - Загальноосвітня школа №31, - Зупинки громадського транспорту (1 хвилина пішки), - Центральний парк міста (7 хвилин на авто), - ТРЦ "HOLLYWOOD" (2 хвилин на авто), - Історичний центр міста (10 хвилин на авто). - Міський пляж (10 хвилин на авто),
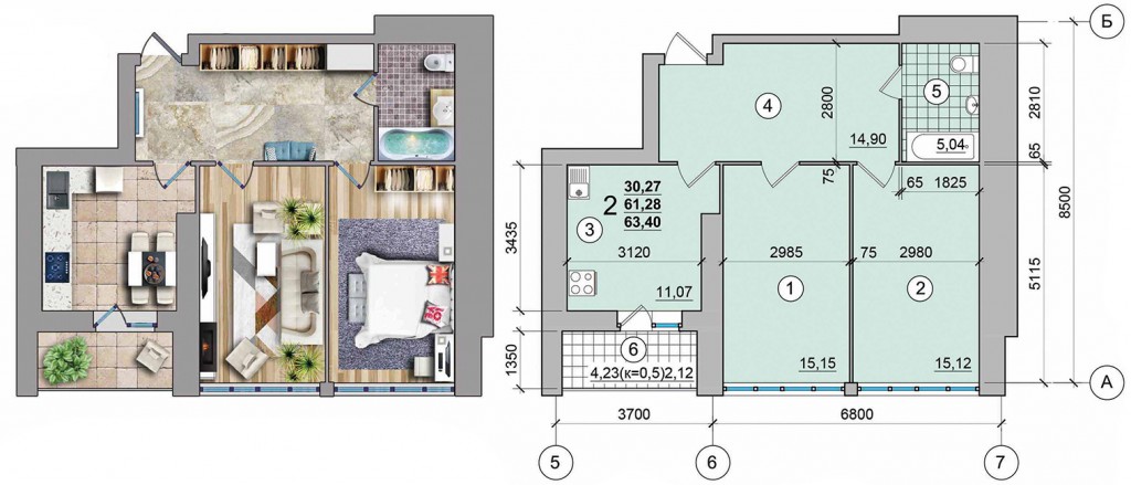
Вартість 9200 грн./кв.м! - 583 280грн.
Індивідуальне кредитування! При внесенні 50% від вартості квартири ціна - 9600 грн./кв.м, при 70% ціна - 9400 грн./кв.м.
Здача будинку в експлуатацію - IV квартал 2019 року.