|
|
ул. Молочная, 56 — Продається офіс
(г. Харьков, Червонозаводский район)
1200 $ за кв.м.
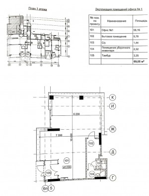
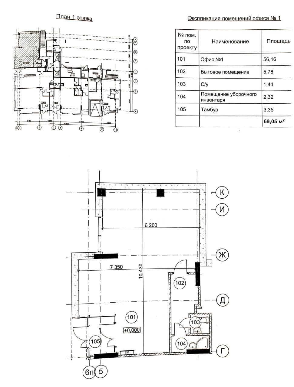
Загальна площа: 69.05 кв.м
Кімнат: 1
Поверх: 1
К-ть поверхів: 15
Ексклюзивний продаж (переуступка) від власника комерційних приміщень в ЖК "Кристал" Площа: 69,05 кв.м. Ціна продажу: $ 1200 за кв.м. Операція: переуступка Об'єкт: нежитлове приміщення в ЖК "Кристал" Клас: бізнес Забудовник: ЖС-2 Здача: I квартал 2021 року Адреса: м.Харків, ул.Молочная 56 Поверховість: 1/15 Розташування: червона лінія, інтенсивний трафік Стан: будівельний Планування: вільне, свій санвузол, висота стель 4 м Характеристики: окремий вхід, вiтрина Комунікації: вода і каналізація центральні, опалення автономне Застосування: магазин, салон, громадське харчування, офіс, стоматологія, нотаріат
|
Оновлено: 22 жовтня 2021
Розміщено: 22 лютого 2021
|
|
Коментарі
|