Вхід на сайт

Ел. пошта:
Пароль:

Реєстрація на сайті

Призвіще: Область:
Ім'я: Населений пункт:
    По батькові: Номер телефону:
    Ел. пошта: Компанія:
      Пароль: Посада:
      Повторіть пароль: Рік початку роботи:
      Фото:
      З правилами розміщення об'єктів погоджуюсь

      Забули пароль?

      Вкажіть ел. пошту — ми надішлемо Вам новий пароль для входу
      Ел. пошта:

      Проблема на сайті

      Закрити
      Ваш e-mail:
      (необов'язково)
      Розкажіть нам, що сталось

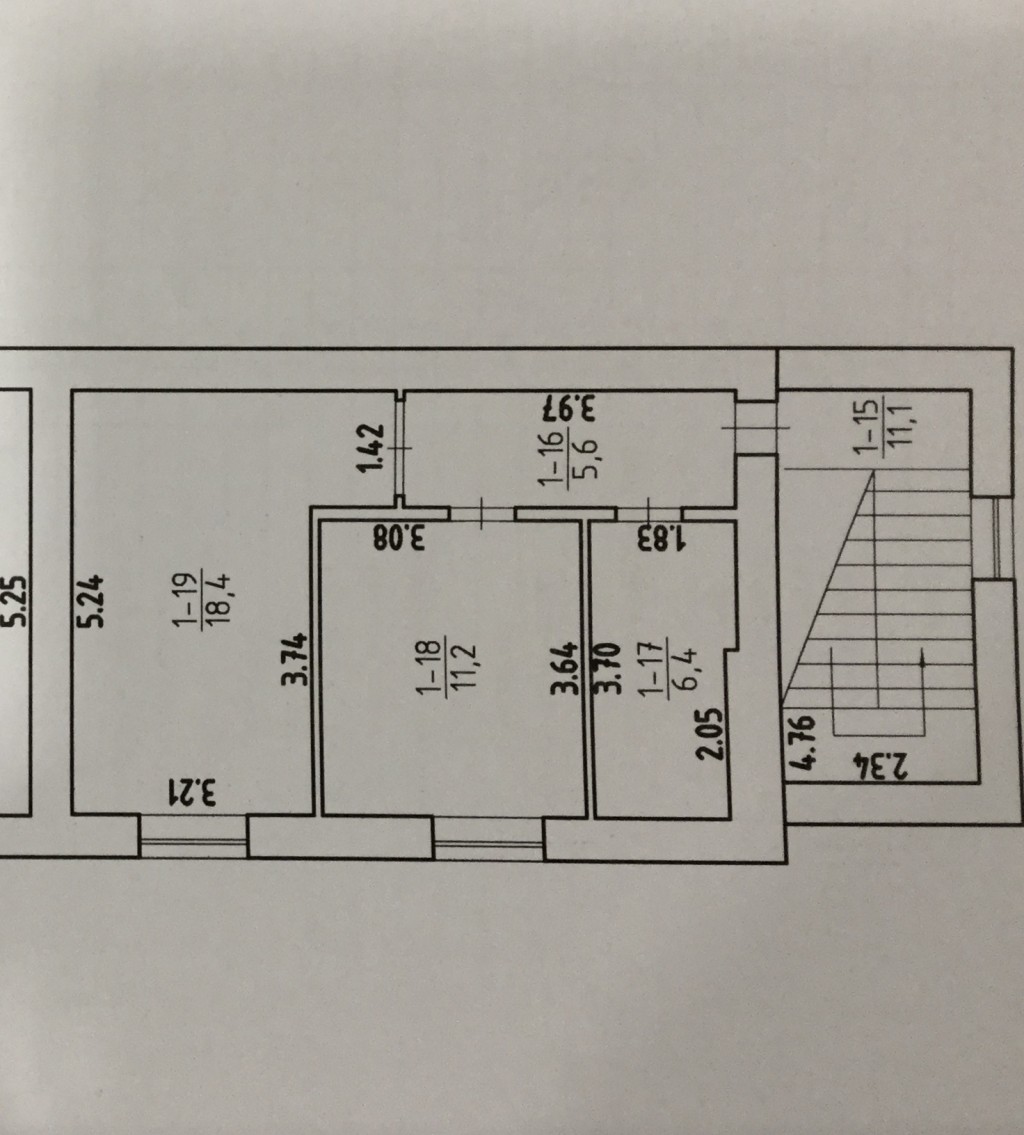
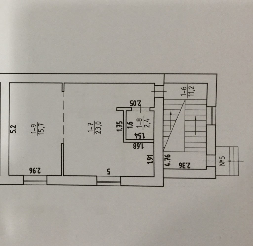
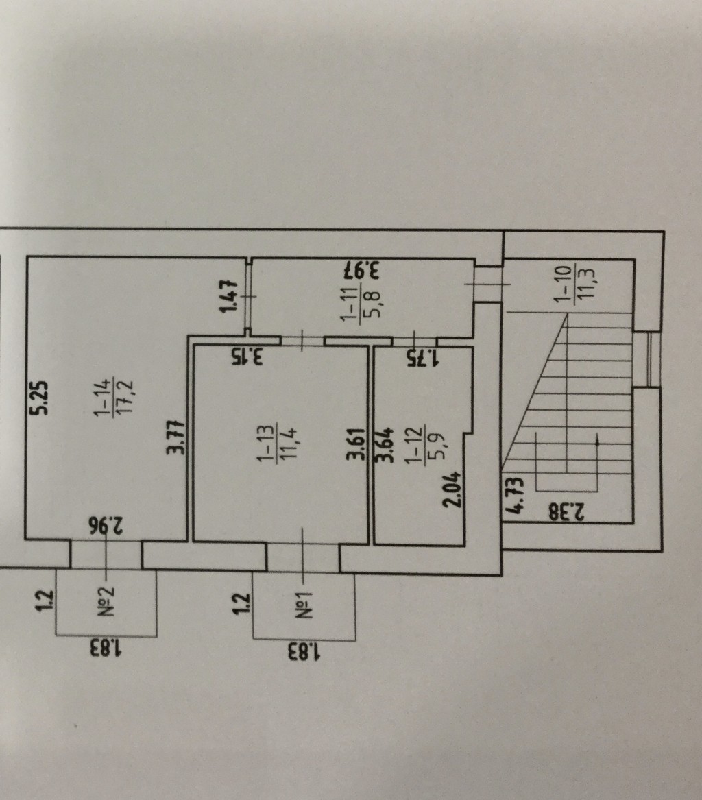
      без комісії 6 Слободская — Продається таунхаус

      (г. Николаев, Центральный район)

      99000 $

      Загальна площа: 157 кв.м

      Кімнат: 5

      Таунхаус в центре - улица 6 Слободская-Пограничная, 157/74/23.
      Три этажа, 5 комнат.
      На каждом этаже есть санузел.
      Год постройки 2015. Перекрытия железобетонные.
      Стены, потолок - цементная штукатурка, полы - стяжка.
      В дом заведён газ. Автономное отопление. Есть двухконтурный котёл и газовая плита.
      Выполнена разводка по воде, теплу и электричеству.
      Дом утеплён.
      Выполнены все наружные отделочные работы.
      Есть внутренний дворик с беседкой и крытым местом для автомобиля. Два удобных въезда во двор.

      Єрмолов Олег

      Єрмолов Олег В'ячеславович

      Директор, засновник (Юрінформ АН)

      +380 (63) 774-57... Показати номер телефона +380 (63) 774-57-09, +380 (50) 753-25-48, +380 (67) 115-46-35

      Поскаржитися на об'єкт

      Надіслати скаргу

      Закрити
      Поскаржитися на об'єкт «6 Слободская (г. Николаев, Центральный район)»
      Ваш коментар:(Необов'язково)
      Ваша скарга буде надіслана ріелтору, що розмістив об'єкт, а також адміністрації сайту АФНУ.
      Ваше ім'я:
      (Обов'язково)
      Ваш e-mail для відповіді:
      (Обов'язково)

      Коментарі