ул. Гагарина, 1 — Здається заклад громадського харчування
(г. Полтава, Октябрьский район)
42441 грн.
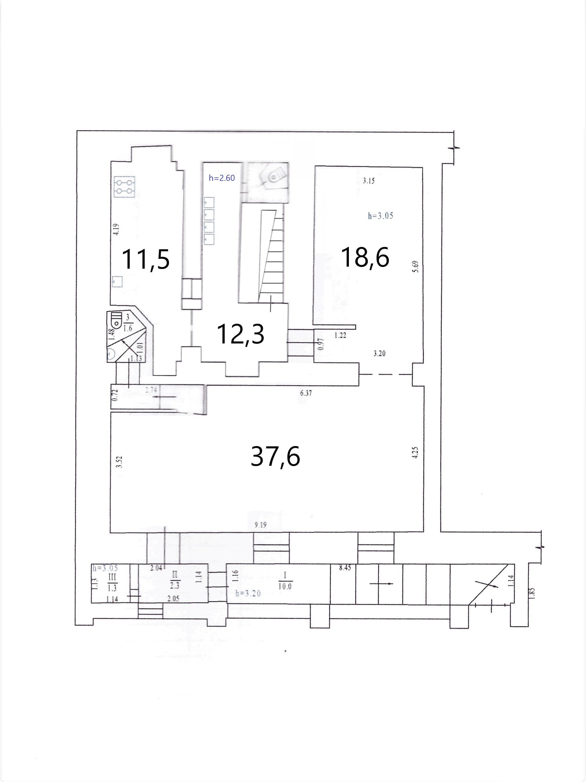
Загальна площа: 98 кв.м
К-ть поверхів: 4
Сдам в аренду помещение таверны "Ривенделл" в Центре площадью 98,7 м.кв на Красной Линии.
Характеристики помещения: - два зала - 37,6 и 18,6 м.кв; - общая площадь- 98,7 м.кв; - фасадная часть здания; - высота помещения Н= 3,05 м.; - коммуникации- централизованные; - пожарная и охранная сигнализации; - система вентиляции и кондиционирования воздуха; - ремонт; Предыдущее применение: ресторан.
Возможное применение: магазин, ресторан, объект сферы услуг.
Высокие пешеходные и транспортные потоки.
Стоимость аренды: по 430 грн/м2 + коммунальные платежи Дополнительно оплачиваются услуги АН Альянс Риэлти
Сдам в аренду помещение кафе в Центре (р-н остановки Шевченко) по ул. Европейской, 24/42, общей площадью 63,4 м2 на Красной Линии. Характеристики помещения: - 1 этаж общей площадью 63,4 м2;…
Сдам в аренду помещение кафе в Центре (р-н остановки Шевченко) по ул. Европейской, 24/42, общей площадью 63,4 м2 на Красной Линии. Характеристики помещения: - 1 этаж общей площадью 63,4 м2;…