без комісії
пер. Шевченковский, 48 — Продається квартира в новобудові
(г. Харьков, Киевский район)
779840 грн.
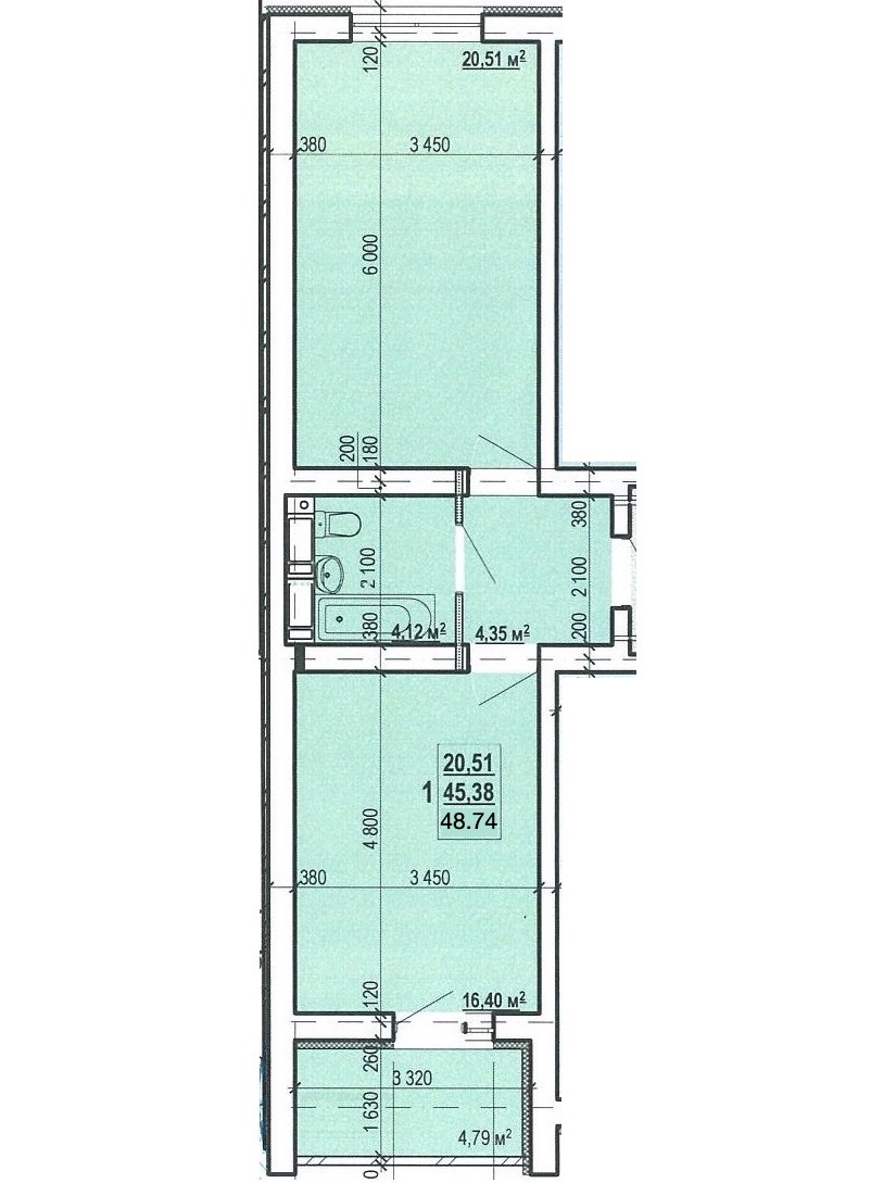
Загальна площа: 48.74 кв.м
Жила площа: 22 кв.м
Площа кухні: 16 кв.м
Кімнат: 1
Поверх: 8
К-ть поверхів: 9
БЕЗ КОМІСІЇ продається 1-кімнатна квартира в ЖК "Пташка". Комплекс розташований по пров. Шевченківський 48. У 1 км., ходьби знаходяться станції метро «АК. Павлова», супермаркет (Чудо), БЦ Radmir, малі продовольчі та побутові магазини та зупини автобусів та трамваїв. До найближчих дитячих садків та шкіл, 2 км. - Квартира розташована в будинку № 22 - будується, здача запланована на 4 квартал 2022 року. Площа квартири: Загальна. - 48.74 м²; Житлова - 22 м²; Кухня - 16 м². - ПОТРІБНО КАПІТАЛЬНИЙ РЕМОНТ. КОМПЛЕКТАЦІЯ КВАРТИРИ: • встановлені перегородки як зазначено на плані; • металопластикові вікна (viknaland) • горизонтальна розводка опалення та радіатори опалення (є можливість поставити лічильник на тепло, регулятори на батареї і контролювати подачу тепла в квартиру індивідуально); • вхідні залізні двері; • лічильник на електрику; • підведені комунікації (холодна, гаряча вода); • каналізація; • прийнято електрику; • зроблено зовнішнє утеплення стін (утеплювач пінополістирол 100 мм). - Буду радий Вас чути): Пн-Пт - 8: 00-20: 00. Сб-Нд - II: 00-20: 00 Святкові дні - вихідний.