ул. Шевченко, 327/8 — Продається квартира в новобудові
(г. Харьков, Киевский район)
26700 $
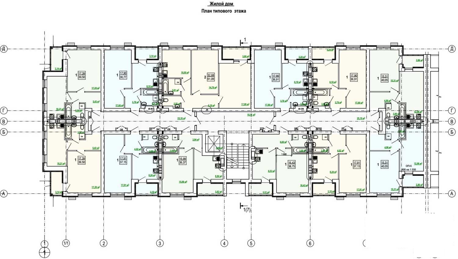
Загальна площа: 37 кв.м
Жила площа: 18 кв.м
Площа кухні: 8 кв.м
Кімнат: 1
Поверх: 6
К-ть поверхів: 9
Продаю уютную однокомнатную квартиру общей площадью 37.15 м2 в новострое самого надёжного Харьковского застройщика АО Трест Жилстрой-1, ЖК Гидропарк, по строительному адресу, ул. Шевченко 327, дом 8, секция А. Квартира находится на шестом этаже, девятиэтажного дома с наружным утеплением стен. Окна выходят во двор. Не угловая, не торцевая. В квартире установлены межкомнатные перегородки, металлическая дверь, метало-пластиковые окна, горизонтальная разводка отопления с установкой радиаторов (есть возможность установки индивидуального счётчика на тепло), счётчик электроэнергии, застеклённая лоджия. Новый ЖК находится недалеко от пересечения ул. Шевченко и ул. Героев Труда, в минутной пешей доступности к остановкам общественного транспорта. Удобная транспортная развязка, наличие рядом парка и речки, супермаркетов (АТБ), детских садов, школ и больниц создает все условия для комфортной и счастливой жизни. В комплексе предусмотрено облагораживание придомовой территории, оборудованные детские площадки, комфортные зоны отдыха и занятий спортом, стадиона, многоэтажного паркинга, а также выделенная парковочная зона для гостей на придомовой территории. До станции метро "Киевская" - 10 минут езды на общественном транспорте. Оформление в офисе треста Жилстрой-1. Плановая сдача дома, декабрь 2021 года, с апреля 2022 года можно приступать к ремонту. Звонки и заявки на просмотры квартиры принимаются ежедневно с 9.00 до 19.00. Больше информации на https://www.facebook.com/gilstroynovostroy