пр. Московский, 270 В — Продається квартира в новобудові
(г. Харьков, Орджоникидзевский район)
30900 $
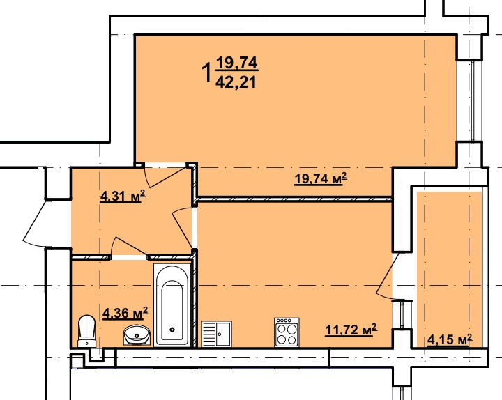
Загальна площа: 42 кв.м
Жила площа: 20 кв.м
Площа кухні: 12 кв.м
Кімнат: 1
Поверх: 7
К-ть поверхів: 9
Продаю шикарную однокомнатную квартиру общей площадью 42.21 м2 в новострое ЖК Мира-3, строительный адрес дом 3 (одноподъездный, свечка), самого надёжного Харьковского застройщика АО Трест Жилстрой-1. Плановая сдача дома в декабре 2021 г., к ремонту можно приступать в апреле 2022 года. Квартира находится на седьмом этаже, девятиэтажного дома с наружным утеплением стен. Не угловая, не торцевая. Окна во двор. В квартире установлены межкомнатные перегородки, металлическая дверь, метало-пластиковые окна, горизонтальная разводка отопления с установкой радиаторов (есть возможность установки индивидуального счётчика тепла), счётчик электроэнергии. В доме предусмотрены электрические кухонные плиты. ЖК Мира 3 находится на пересечении Московского проспекта и проспекта Индустриального (бывший пр-т Фрунзе) ул. Мира и ул. 12 Апреля в минутной пешей доступности к станции метро Индустриальная. Развитая инфраструктура, непосредственная близость метро, удобная транспортная развязка, наличие рядом парка, рынка, супермаркетов, детских садов, школ и больниц создает все условия для комфортной и счастливой жизни. В комплексе предусмотрено облагораживание придомовой территории, оборудованные детские площадки, комфортные зоны отдыха и занятий спортом, а также выделенная парковочная зона для гостей на придомовой территории. Оформление в офисе треста Жилстрой-1. Звонки и заявки на просмотры квартир принимаются ежедневно с 9.00 до 19.00.