Вхід на сайт

Ел. пошта:
Пароль:

Реєстрація на сайті

Призвіще: Область:
Ім'я: Населений пункт:
    По батькові: Номер телефону:
    Ел. пошта: Компанія:
      Пароль: Посада:
      Повторіть пароль: Рік початку роботи:
      Фото:
      З правилами розміщення об'єктів погоджуюсь

      Забули пароль?

      Вкажіть ел. пошту — ми надішлемо Вам новий пароль для входу
      Ел. пошта:

      Проблема на сайті

      Закрити
      Ваш e-mail:
      (необов'язково)
      Розкажіть нам, що сталось

      без комісії ул. Булгакова, 12 — Продається квартира

      (г. Киев, Святошинский район)

      72000 $

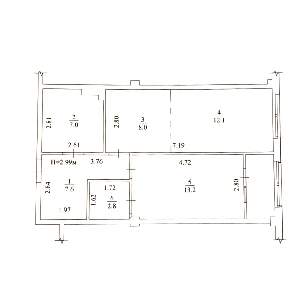
      Загальна площа: 55 кв.м

      Жила площа: 26 кв.м

      Площа кухні: 8 кв.м

      Кімнат: 2

      Поверх: 3

      К-ть поверхів: 5

      Продається 2-кімнатна квартира по вул. Булгакова, 12. На третьому поверсі п’яти поверхового будинку 2015 року забудови. Загальна площа 55 кв.м., житлова 26 кв.м.
      Простора кухня-вітальня, окрема спальня з гардеробною, балкон. Міські комунікаціі: вода, каналізація, електрика. Індивідуальне електричне опалення, підігрів підлоги в санвузлі.
      У дворі є місця для паркування машин.
      Квартира після ремонту - ніхто не проживав.
      Розвинена нфраструктура: школи, садки, супермаркети. Поруч зупинка міського транспорту, швидкісний трамвай, до метро Шулявська, Вокзальна - 20 хвилин.
      72000$, без %
      0965943044 Виктория

      Надіслати скаргу

      Закрити
      Поскаржитися на об'єкт «ул. Булгакова, 12 (г. Киев, Святошинский район)»
      Ваш коментар:(Необов'язково)
      Ваша скарга буде надіслана ріелтору, що розмістив об'єкт, а також адміністрації сайту АФНУ.
      Ваше ім'я:
      (Обов'язково)
      Ваш e-mail для відповіді:
      (Обов'язково)

      Вам также могут подойти

      ул. Вишняковская, 7а (г. Киев, Дарницкий район) - Продається квартира, 85000 $ - АФНУ

      Оновлено: 20 січня

      Розміщено: 4 вересня 2024

      Продається квартира

      4 кімн., площа 107/58/11, поверх 1/14

      г. Киев, ул. Вишняковская, 7а

      85000 $ без комісії

      Яковенко Виктория Владимировна

      руководитель отдела продаж (VALION Київ, Харків, Одеса, Міколаїв, Львів, Івано-Франківськ, Ужгород, Полтава, Бориспіль, Ірпінь, Вишгород)

      Без % Продаж 4к квартири вул. Вишняківська 7А, Осокорки, Дарницький район, Лівий берег

      Під ремонт.
      Квартира має особливе планування та широкі можливості до перепланування, де Ви зможете реалізувати свою мрію.…

      Детальніше

      Харківське шосе, 210 (г. Киев, Дарницкий район) - Продається квартира, 60500 $ - АФНУ

      Оновлено: 20 січня

      Розміщено: 16 липня 2025

      Продається квартира

      1 кімн., площа 52/17/15, поверх 24/28

      г. Киев, Харківське шосе, 210

      60500 $ без комісії

      Яковенко Виктория Владимировна

      руководитель отдела продаж (VALION Київ, Харків, Одеса, Міколаїв, Львів, Івано-Франківськ, Ужгород, Полтава, Бориспіль, Ірпінь, Вишгород)

      Продаж 1 кімнатної квартири в Києві, ЖК Olympic Park
      Загальна площа - 52,67 м2, кухня-вітальня 15,54 м2.
      Є варіанти перепланування квартири.
      Стан - після будівельників.

      Квартира розташована на видовому 24…

      Детальніше

      ул. Клавдиевская, 40є (г. Киев, Святошинский район) - Продається квартира, 67000 $ - АФНУ

      Оновлено: 12 січня

      Розміщено: 16 серпня 2024

      Продається квартира

      1 кімн., площа 47/30/15, поверх 23/25

      г. Киев, ул. Клавдиевская, 40є

      67000 $ без комісії

      Сенатосенко Олена Вікторівна

      ріелтор (VALION Київ, Харків, Одеса, Міколаїв, Львів, Івано-Франківськ, Ужгород, Полтава, Бориспіль, Ірпінь, Вишгород)

      Продам:
      без комісії,
      1-кім. квартиру,
      Святошинський район,
      ЖК "Грюнвальд",
      вул. Клавдіївська, 40є,
      поверх 23 з 25,
      загальна площа - 47 кв.м.

      Квартира з функціональним плануванням: окрема спальня з гардеробною, кухня…

      Детальніше

      Коментарі