без комісії
Незалежності, 10 — Продається квартира в новобудові
(г. Чернигов, Новозаводской район)
26000 грн. за кв.м.
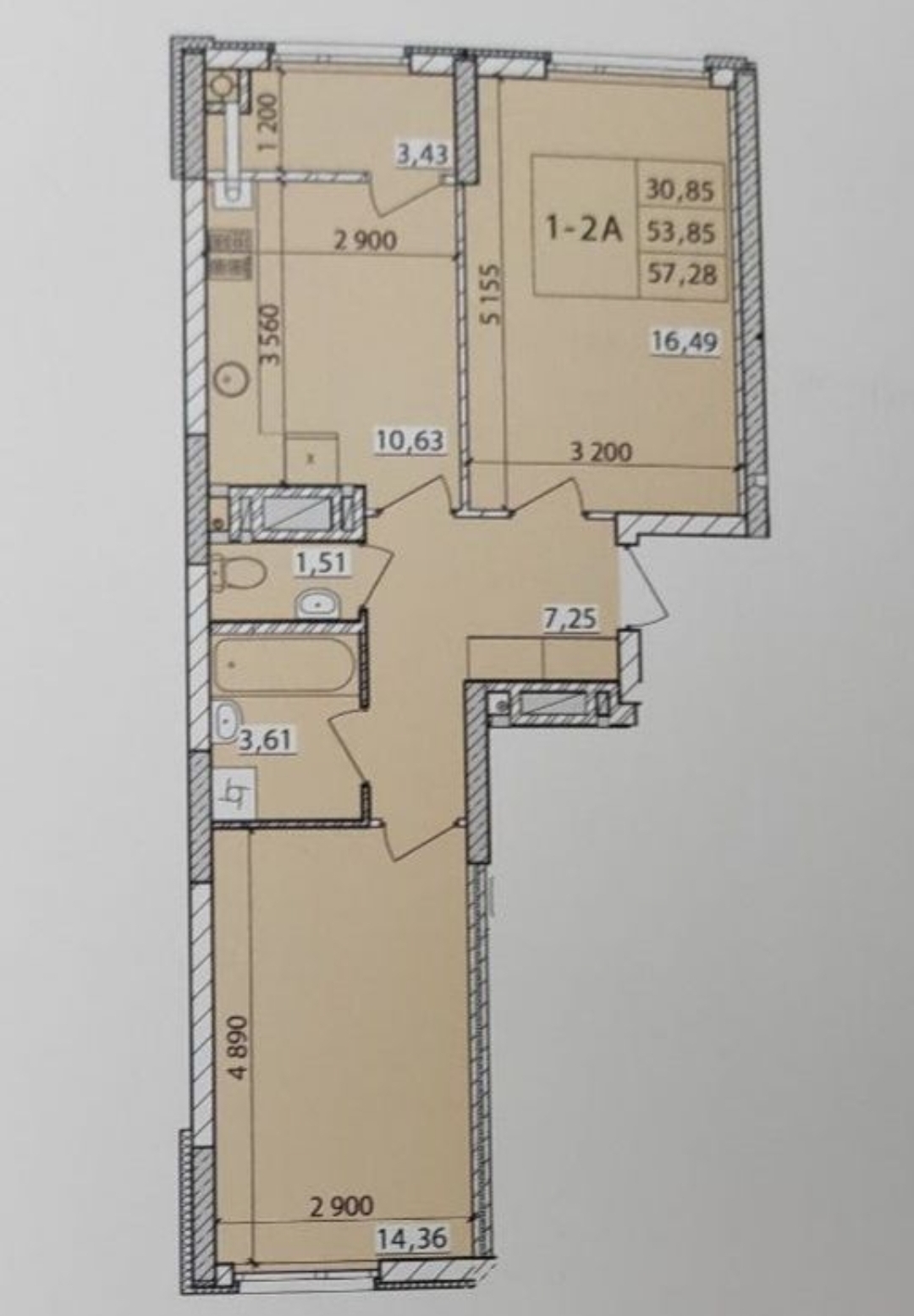
Загальна площа: 57 кв.м
Жила площа: 31 кв.м
Площа кухні: 11 кв.м
Кімнат: 2
Поверх: 4
К-ть поверхів: 10
Продам 2-кімнатну квартиру в новому ЖК Масани-сіті, по вул. Красносільського Здача будинку літо 2023 року!
Загальна площа: 57,49м
Переваги: новий 10-поверховий монолітно-каркасний будинок з ізоляцією всіх зовнішніх стін - в квартирі встановлений двоконтурний газовий котел (автономне опалення) - встановлено лічильники води, газу, електроенергії - у квартирах цього будинку встановлені 5-ти камерні металопластикові вікна з двокамерними склопакетами та енергозберігаючим склом - зроблена звукоізоляція міжквартирних перегородок - квартира в середині будинку
Ціна 26000грн/м - 1494740грн
Ваші діти будуть в захваті! На території житлового комплексу буде власний просторий дитячий та спортивний майданчик під відкритим небом, де діти різного віку зможуть провести час дуже цікаво і найголовніше - безпечно.
Поряд є все необхідне : школи, дитячі садки, магазини, супермаркет, зупинки і багато іншого.
Телефонуйте прямо зараз і записуйтесь на перегляд!