Вхід на сайт

Ел. пошта:
Пароль:

Реєстрація на сайті

Призвіще: Область:
Ім'я: Населений пункт:
    По батькові: Номер телефону:
    Ел. пошта: Компанія:
      Пароль: Посада:
      Повторіть пароль: Рік початку роботи:
      Фото:
      З правилами розміщення об'єктів погоджуюсь

      Забули пароль?

      Вкажіть ел. пошту — ми надішлемо Вам новий пароль для входу
      Ел. пошта:

      Проблема на сайті

      Закрити
      Ваш e-mail:
      (необов'язково)
      Розкажіть нам, що сталось

      без комісії Петлюри, 21 — Продається офіс в новобудові

      (г. Бровары)

      75000 $

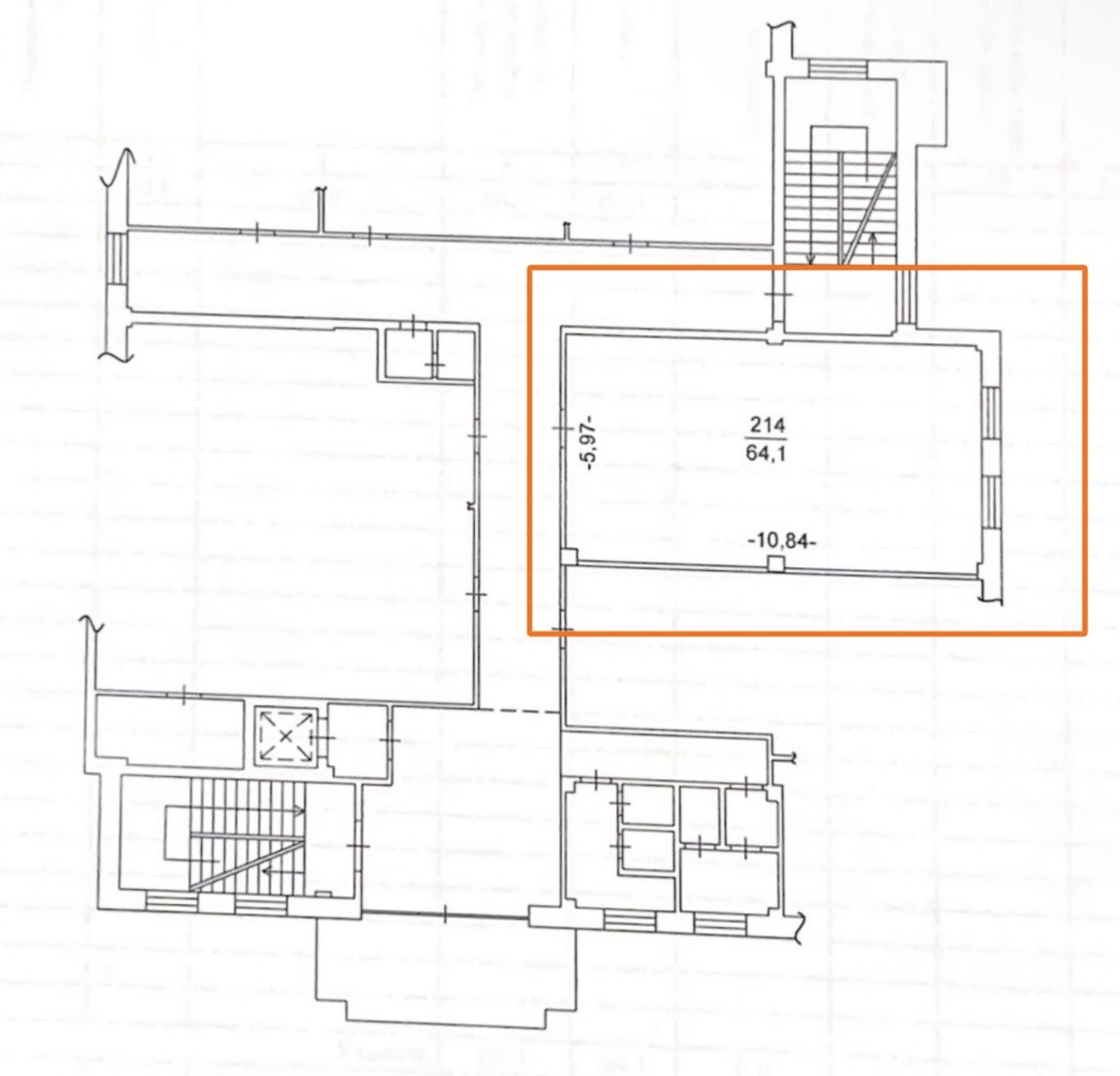
      Загальна площа: 64 кв.м

      Кімнат: 1

      Поверх: 2

      К-ть поверхів: 3

      Продається нежитлове приміщення в місті Бровари, ідеально підходить для різних видів бізнесу!
      • Площа: 64 квадратних метри.
      • Висота стелі: 3 метри.
      • Розташування: 2 поверх з 3.
      • Ліфт та пандус для інвалідів доступні.
      • Приміщення під ремонт (після будівельників), що дає вам можливість втілити свої ідеї та вимоги.
      • Підключені комунікації: каналізація, вода, світло (5-7 кВт).
      • Є можливість облаштувати санвузол в приміщенні. А також є санвузол на поверсі.

      • В цьому будинку вже працюють офіси , англійська школа, стоматологія, косметологічний салон, театр танцю, студія малюк і мама.
      • Поруч знаходиться ТРЦ “Термінал” , аптека, транспорт.
      Це ідеальна можливість для розгортання кафе, магазину, офісу, студії, аптеки, або будь-якого іншого бізнесу.
      Звертайтесь за додатковою інформацією та переглядом!

      Надіслати скаргу

      Закрити
      Поскаржитися на об'єкт «Петлюри, 21 (г. Бровары)»
      Ваш коментар:(Необов'язково)
      Ваша скарга буде надіслана ріелтору, що розмістив об'єкт, а також адміністрації сайту АФНУ.
      Ваше ім'я:
      (Обов'язково)
      Ваш e-mail для відповіді:
      (Обов'язково)

      Коментарі