Вхід на сайт

Ел. пошта:
Пароль:

Реєстрація на сайті

Призвіще: Область:
Ім'я: Населений пункт:
    По батькові: Номер телефону:
    Ел. пошта: Компанія:
      Пароль: Посада:
      Повторіть пароль: Рік початку роботи:
      Фото:
      З правилами розміщення об'єктів погоджуюсь

      Забули пароль?

      Вкажіть ел. пошту — ми надішлемо Вам новий пароль для входу
      Ел. пошта:

      Проблема на сайті

      Закрити
      Ваш e-mail:
      (необов'язково)
      Розкажіть нам, що сталось

      ул. Мира — Продається квартира

      (г. Харьков, Орджоникидзевский район)

      35000 $

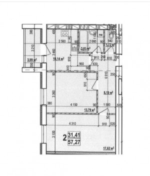
      Загальна площа: 54 кв.м

      Жила площа: 31 кв.м

      Площа кухні: 10 кв.м

      Кімнат: 2

      Поверх: 3

      К-ть поверхів: 9

      Продаж 2-кімнатної квартири в новобудові ЖК «Миру-3», будинок 7, вул. Миру, 41 (забудовник ЖС-1).
      Загальна площа 57 м², житлова 32 м², кухня 10 м². Зручне роздільне планування. Комфортний 3 поверх із 9. Тепла квартира в середині цегляного будинку.
      У будинку підключені всі комунікації та опалення, видають ордери, можна одразу розпочинати ремонт. Встановлені металопластикові вікна та біметалеві радіатори. Горизонтальна розводка опалення дозволяє встановити індивідуальний лічильник і економити на комунальних платежах.
      Благоустроєний двір, є паркування для авто, планується велика дитяча площадка. Зручне розташування в районі ХТЗ, поруч транспорт, магазини, школи та вся необхідна інфраструктура.
      Ціна — еквівалент 35 000 у.о
      Телефонуйте для отримання додаткової інформації та запису на перегляд.

      Надіслати скаргу

      Закрити
      Поскаржитися на об'єкт «ул. Мира (г. Харьков, Орджоникидзевский район)»
      Ваш коментар:(Необов'язково)
      Ваша скарга буде надіслана ріелтору, що розмістив об'єкт, а також адміністрації сайту АФНУ.
      Ваше ім'я:
      (Обов'язково)
      Ваш e-mail для відповіді:
      (Обов'язково)

      Вам также могут подойти

      пр. Московский, 270а (г. Харьков, Орджоникидзевский район) - Продається квартира, 36000 $ - АФНУ

      Оновлено: вчора

      Розміщено: 30 жовтня 2024

      Продається квартира

      2 кімн., площа 68/34/12, поверх 3/9

      г. Харьков, пр. Московский, 270а

      36000 $

      Горовая Ольга Владимировна

      Риелтор (АН Алые Паруса)

      Продается 2-к квартира в новострое ЖК Мира-3, от застройщика ЖС 1
      Площадь квартиры 67,7 м², комфортный 3/9 этаж. Раздельная планировка обеспечивает функциональность пространства. Просторная кухня 11,8 м, большая лоджия. У…

      Детальніше

      пр. Героев Сталинграда, 140 (г. Харьков, Коминтерновский район) - Продається квартира, 32000 $ - АФНУ

      Оновлено: вчора

      Розміщено: 30 червня 2023

      Продається квартира

      2 кімн., площа 46/29/6, поверх 7/9

      г. Харьков, пр. Героев Сталинграда, 140

      32000 $

      Горовая Ольга Владимировна

      Риелтор (АН Алые Паруса)

      Эксклюзив!
      Продам 2-х комнатную квартиру на Новых домах, пр. Героев Сталинграда
      Теплый кирпичный дом с уникальной планировкой.
      Общая площадь 46м, большая застекленная лоджия 7,5м.
      В квартире жилое состояние, все окна…

      Детальніше

      пр. Московский, 270а (г. Харьков, Орджоникидзевский район) - Продається квартира, 36000 $ - АФНУ

      Оновлено: вчора

      Розміщено: 30 жовтня 2024

      Продається квартира

      2 кімн., площа 68/34/12, поверх 3/9

      г. Харьков, пр. Московский, 270а

      36000 $

      Горовая Ольга Владимировна

      Риелтор (АН Алые Паруса)

      Продается 2-к квартира в новострое ЖК Мира-3, от застройщика ЖС 1
      Площадь квартиры 67,7 м², комфортный 3/9 этаж. Раздельная планировка обеспечивает функциональность пространства. Просторная кухня 11,8 м, большая лоджия. У…

      Детальніше

      Коментарі