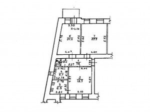
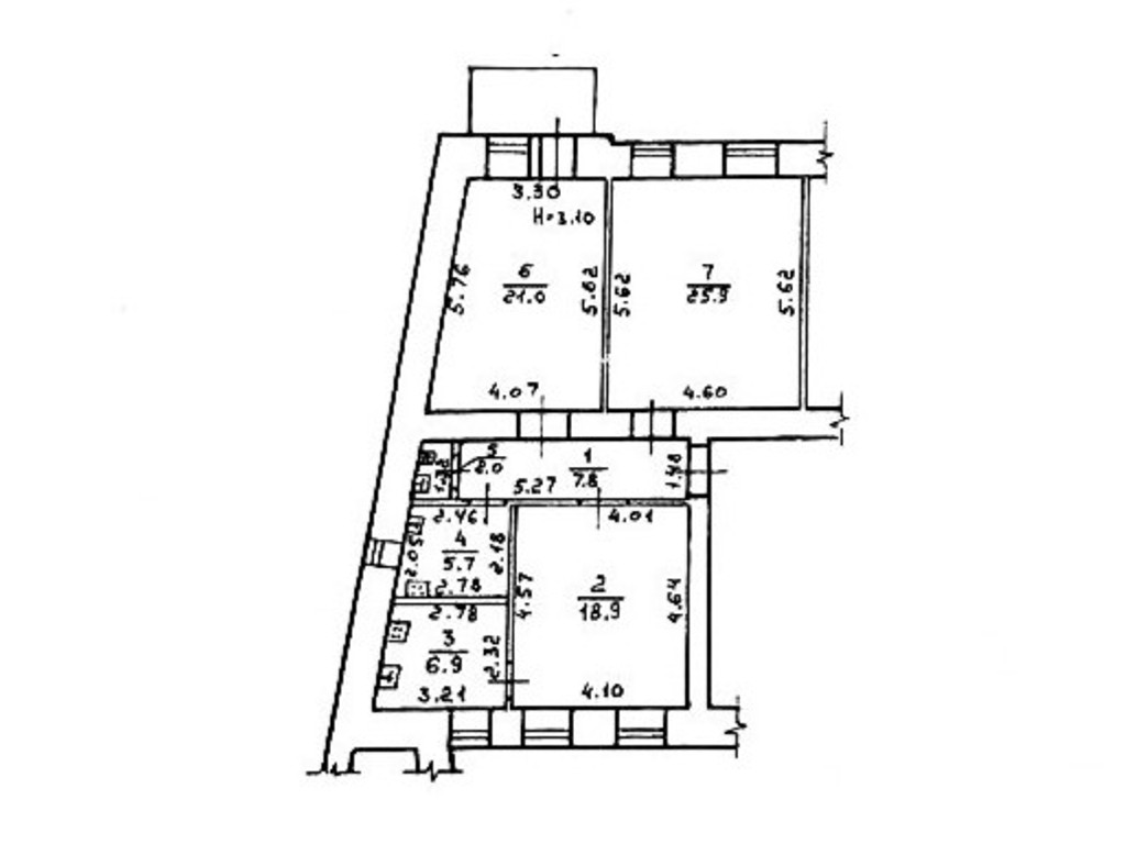
Большая Арнаутская / Старопортофранковская, продам квартиру, расположенную на 2 этаже красивого и крепкого 3-ехэтажного старинного дома, 89/66/7 кв.м, три шикарные раздельные комнаты (26 + 21 + 19 кв.м), кухня с возможностью увеличения до 14 кв.м, балкон, сан. узел тоже можно увеличить до 14 кв.м превратив в его в красивейшую ванную комнату, высота потолков 3,2 метра, правильная и удобная планировка, автономное отопление и горячая вода (АГВ и колонка), ухоженная фасадная парадная с мраморной лестницей, просторная и очень перспективная квартира под ремонт и реализацию Ваших фантазий и идей в отличном районе в самом центре города!
Успенская / Бориса Литвака, продам квартиру, расположенную на очень высоком бельэтаже красивого старинного трехэтажного дома, 65/48/10 кв. м, три смежно-раздельных комнаты, удобная кухня, сан. узел совмещен с душевой кабиной, все…